Case Histories
GE HEALTHCARE
FONDAZIONE IMAGO7, IRCCS STELLA MARIS, Calambrone (PI)
“IMAGO7 Foundation is a consortium for scientific research in the field of magnetic resonance (MR) at ultra-high static field.
The main facility is the first and only 7 Tesla MR system in Italy. The complexity of the system from a technological standpoint requires extensive interdisciplinary interaction among researchers with diverse backgrounds in the fields of Physics and Engineering to understand, control and develop the system itself, as well as to exploit its capabilities for pursuing scientific research in the fields of Medicine, Physiology, Neuroscience.
The scope of scientific research at IMAGO7 is not limited to basic science: researchers work for the development of applied technology and investigate the application of ultra-high field MR in the clinical research.”
Source: IMAGO7 Foundation
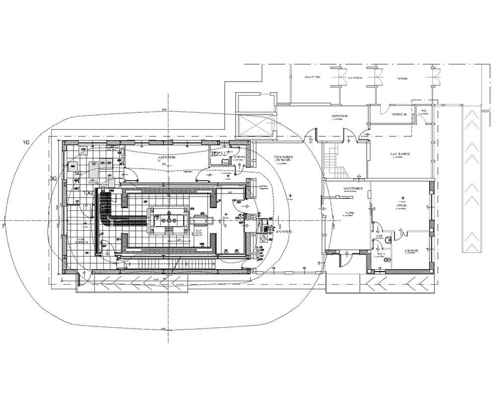
ITEL has designed and implemented as a “turnkey solution” two blocks, one dedicated to the containment of the magnet and of the whole plant part, one relating to the acceptance, the waiting room and the visitors area.
ITEL’s activity included the renovation with restyling of existing premises and subsequently destined for offices-laboratories and meeting rooms.
The highlight of the installation consists in the particular magnetic shielding designed to contain the particularly large magnetic field created by the superconducting magnet. The final result makes the magnetic field very uniform in the isocenter (4 ppm field uniformity) and General Electric has included it as a “reference site” worldwide for 7 Tesla installations.
PROJECT SUMMARY:
Creation of two new blocks:
Block 1: magnet containment and all systems;
Block 2: designated area for patient’s welcoming, waiting room, visiting room;
Restructuring and restyling of rooms used as offices-laboratories and meeting room.
QUALITIES
- Optimized symbiosis with the pre-existing environment;
- Execution speed and realization;
- Cost Savings;
- HVAC implants with maximum energetical saving;
- Materials with low environmental impact.
GEOMETRIC DATA OF THE INTERVENTION
Intervention area: about 1000 square meters
Maximum height: about 9.00 m
Screen for containment of the magnetic field: about 500 tons
(Field uniformity 4 ppm)





